3棟 8件
-
募集中の物件
-
- CATV
- 光ファイバー
- バイク置場あり
- 公共下水
鉄骨造は耐久性があり地震のリスクを抑えられます。リーズナブルな賃料2.9万円。非常に好条件です。ワンルームでも広さのあるワンルームなら快適にくらせます。毎日の通勤がラクラク快適な生活がおくれる物件になります。吹田市エリアと東海道・山陽本線吹田付近のお部屋探しなら当社へ。あなたからのお問い合せをスタッフ一同お待ちしております。
募集中の部屋
-
募集中の部屋
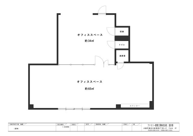
ワンフロアの事務所・倉庫です。飲食は出来ません。不特定多数が来店される店舗も出来ません。前面タイル部分には、車やバイクも駐車可能です。(車庫証明書類の発行には、10,000円+税 が必要です。)写真にはありませんが、シャッター(手動)が付く予定になっております。